

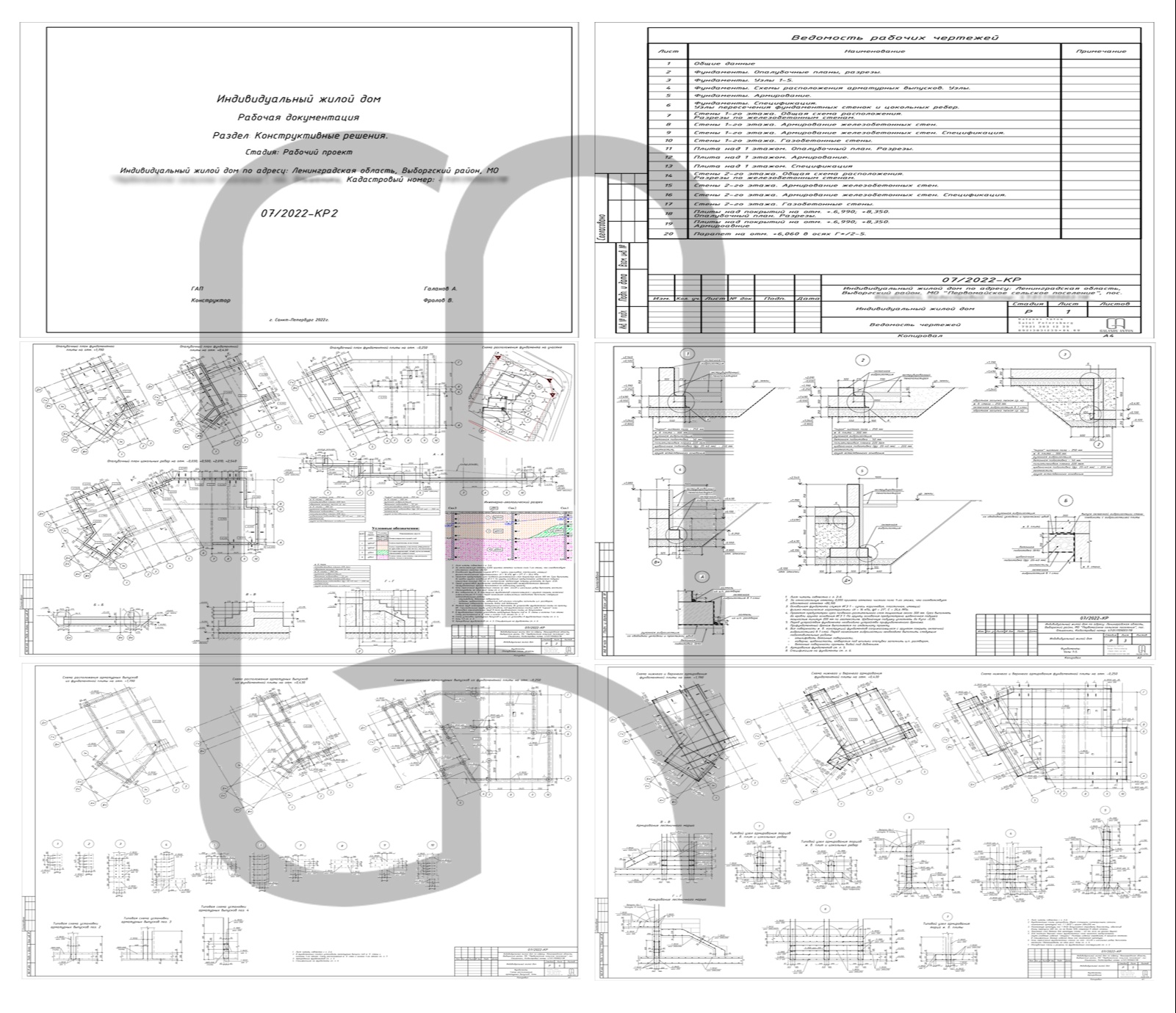
Образец проектаНабор чертежей конструкций дома, расчет нагрузок для фундамента, стен и кровли
Состав:
- Конструктивные решения по всем важным элементам строения ( фундамент, стены, перекрытия, кровли)
- Планы фундаментов
- Кладочные планы
- Планы перекрытий
- Планы кровель
- Узлы/детали
- Спецификация
Стоимость: 650 р/м2


Перепланировка и декоративная отделка квартир, домов и коммерческих помещений
Этапы :
- Предложение по планировкам и расстановке мебели
- Эскизы помещений. Варианты подборки по отделочным материалам и мебели в виде коллажей и предварительных визуализаций
- Предложение по планам электрики и сантехники
- По согласованию всех этапов предоставляется проект
Состав проекта:
- Планировочные решения/расстановка мебели
- Планы монтажа/демонтажа перегородок
- Планы полов/потолков
- Схемы электрики/сантехники/вентиляции/слаботочных сетей
- Разрезы помещений
- Развертки по стенам
- Габаритные чертежи заказной мебели/ Чертежи сложных узлов отделки помещений (при необходимости)
- Ведомость чистовых материалов.
- Эскизные зарисовки помещений.
Стоимость: 3300 р/м2
Дополнительные услуги:
- 3d- визуализации помещений - 1500 р/м2
- Авторский надзор – ведение проекта на этапе его воплощения/подборка мебели и материалов на основе проекта – от 40 т. руб/мес